余熱鍋爐(余熱煙氣、固廢焚燒余熱、冶煉行業余熱)
當前位置:首頁>產品中心
余熱蒸汽/熱水鍋爐

產品范圍
蒸發量:1-35t/h,設計壓力:0.8-3.8MPa
導熱油爐近20多年來,已在紡織印染、化工、人造革、建材等行業廣泛應用,但由于其回油溫度高,一般在200-250℃,致使鍋爐的排煙溫度也高,正常情況下可達300-350℃,造成大量的熱量白白排入大氣浪費掉。在如今世界能源緊缺,能源價格大幅飆升的時代,節能已成為持續發展的需求。本公司長期致力于能源的綜合利用,可為您提供多種低溫余熱的利用方案及工程。生的煙氣短路現象。
導熱油爐余熱回收節能效益分析
|
導熱油爐規格(萬大卡/時)
|
120
|
200
|
300
|
400
|
600
|
800
|
1000
|
1200
|
|
導熱油爐排煙溫度(℃)
|
350
|
350
|
350
|
350
|
350
|
350
|
350
|
350
|
|
導熱油爐排煙量Nm3/h
|
2800
|
4600
|
7000
|
9300
|
14000
|
19000
|
23000
|
28000
|
|
余熱鍋爐蒸汽壓力MPa
|
0.6
|
0.6
|
0.6
|
0.6
|
0.6
|
0.6
|
0.6
|
0.6
|
|
余熱鍋爐蒸汽產量t/h
|
0.27
|
0.44
|
0.65
|
0.87
|
1.34
|
1.83
|
2.23
|
2.73
|
|
配用余熱鍋爐
|
0.3
|
0.5
|
0.8
|
1
|
1.5
|
2.0
|
2.5
|
3.0
|
|
除塵器前煙氣溫度℃
|
152
|
150
|
150
|
149
|
146
|
149
|
149
|
147
|
|
年產蒸汽量t
|
1944
|
3168
|
4680
|
3234
|
9648
|
13176
|
16056
|
19656
|
|
年經濟效益(萬元)
|
29.2
|
47.5
|
70.2
|
94
|
144.7
|
197.6
|
240.8
|
294.8
|
表中蒸汽按150元/噸計算,每年按7200小時生產計算。
表中計算還需根據導熱油爐實際適用工況進行修正。
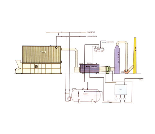
安裝流程圖





蘇ICP備05001716號-1