Biomass Fired Boiler
Now: Home>Products
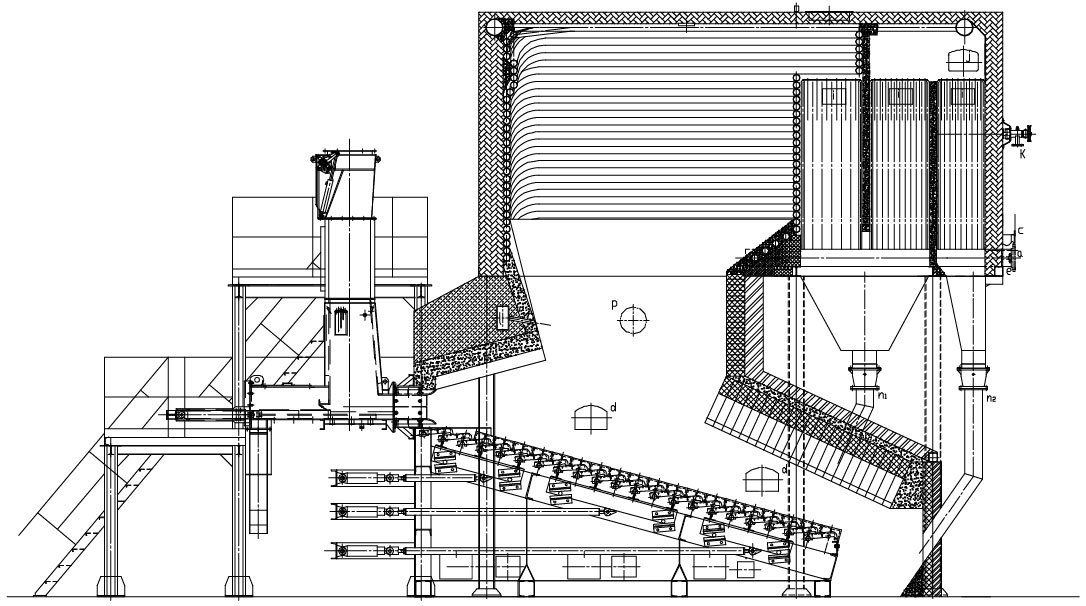
Biomass Thermal Oil Boiler

Product Range
Rated thermal power: 0.7MW - 25MW (60xl04Cal/hr - 2000xl04Cal/hr)
Specific parameters are shown in Table9

Product Range
Rated thermal power: 0.7MW - 25MW (60xl04Cal/hr - 2000xl04Cal/hr)
Specific parameters are shown in Table9
Structural features of this series of products
- YLW biomass thermal oil boiler is circulation-forced chain grate boiler(reciprocating grate).The whole boiler consists the boiler body on the top and the chain grate at the bottom and could be installed in a field assembly.
- The boiler surface adopts single furnace or tightening double square coil at the back of which is a serpentine convective heat exchange tube.
- According to the feature of the fuel, this series of combustion equipment adopt the structural of dust accumulation prevention which could reduce dust accumulation in boilers and make it convenient to clean up the dust. For the purpose of reducing accumulation ofthe dust and improving the heating power of the combustion equipment, the boiler convection heat transfer section adopts high and low staggered row, large spacing and arrangement of soot blowing device ash cleaning device and other measures.
- Compared with the traditional coal-fired boilers, this type of equipment has larger combustion space within the furnace, making the most value ofthe biomass.
- The furnace grate firebox is heightened and the overgrate air is arranged in this equipment.The grate is divided into warehouse air intake, the air volume is adjusted independently, and the grate is steplessly adjusted.
- High temperature resistant material grate and reasonable air distribution cooling form are adopted for grate. The grate is reliable in use and has an operational life span.
Parameters Table 9






Su ICP 05001716-1